建物概要

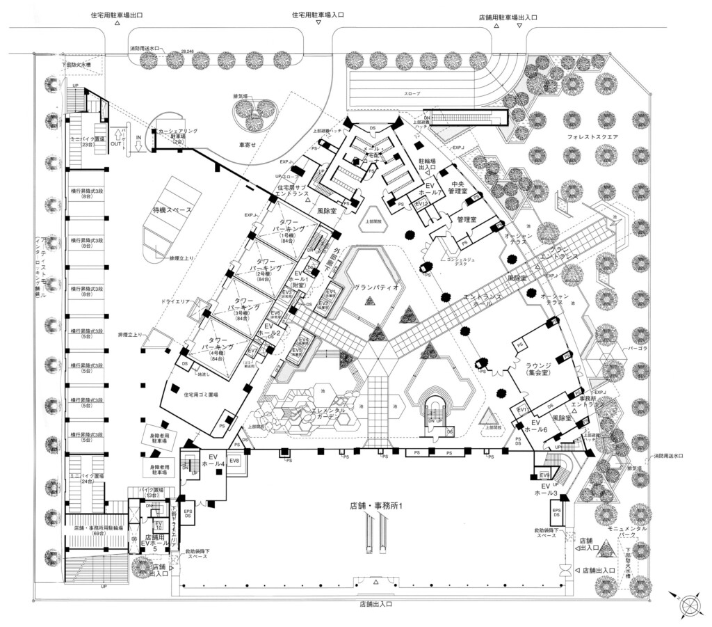
1F